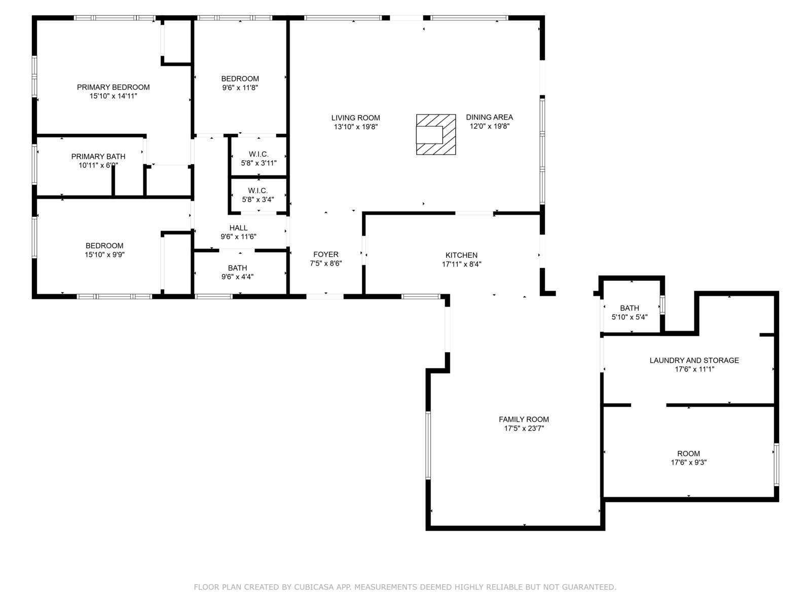
Plans for a new home are available upon request, but this charming ranch-style residence is move-in ready as is. Set on a generous 9,420 sq ft lot (calculation backed by a recent survey), the 3-bedroom, 2.5-bathroom home includes an additional office and offers excellent potential to scale with the new owners, including a full set of plans (for a 4-bedroom house plus a 2-bedroom attached ADU for a total of 6 bedrooms) that have been through planning commission and building department review, ready for the final steps to issue the building permit. The house features a seamless blend of comfort and functionality with hardwood oak floors, an open-concept kitchen and living room, and a private, fenced backyard with a healthy lawn, pergola-covered deck, and mature landscaping - perfect for entertaining or relaxing in one of Menlo Park’s most desirable, walkable neighborhoods. New front and rear landscaping enhances curb appeal, while the peaceful, tree-lined streets offer easy access to downtown Menlo Park, Stanford Shopping Center, downtown Palo Alto, Stanford University, and Caltrain. Top-rated Menlo Park schools complete this rare opportunity to plant roots in the heart of Silicon Valley.